Дом под ключ – 990000 грн.

Дніпропетровська область > Дніпропетровськ
|
14.09.2020
|
28.09.2020
|
переглядів : 396
|
№ номер : 161511
  • Дом под ключ – 990000 грн. - фото
Дом под ключ – 990000 грн. - фото 0Дом под ключ – 990000 грн. - фото 1Дом под ключ – 990000 грн. - фото 2Дом под ключ – 990000 грн. - фото 3
Поскаржитись на оголошення
Спам
Невірна рубрика
Заборонений товар / послуга
Оголошення вже не актуально
Шахрайство
Інша
Відправити
Компания “СКД Украина” предлагает строительство дома под финишную отделку за 990 000 грн.
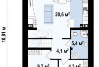
Площадь 120 м2
Этажность: 2 этажа
Проект дома — это прекрасное доказательство тому, что полноценный загородный дом можно построить и на небольшом участке. За счет простоты планировки, его строить быстро, легко и самое главное - дешево. Но это еще не все, главным преимуществом этого проекта является его универсальность, а точнее универсальность мансардного помещения. Ведь там расположен красивейший балкон, с которого открывается отличный вид на сад. На первом этаже расположены прихожая, подсобное помещение, гостиная с кухней. Кстати, и гостиная и кухня имеют выход на чудесную террасу. Наши специалисты отвели специальные места для камина и телевизора в гостиной. Верхний этаж обустроен очень компактно, там находятся три спальни, гардеробная и ванная комнаты. При желании, можно будет пожертвовать одной комнатой для расширения ванной.
Компания “СКД Украина”, благодаря своему немалому опыту работы в сфере строительства, овладела уникальным методом воплощения идей современного жилья.

Удачных Вам решений, высокого энергосбережения и прекрасного микроклимата в уютных каркасных домах вместе с компанией “СКД Украина”!
Ціна:за домовленістю
Закінчився термін публікації оголошення
Немає аватара
На сайті з : 06.08.2019
Онлайн : 22.11.2021 12:17
Поки що коментарів немає.
Ваш коментар буде видно авторові оголошення і всім хто писав коментарі.
Додати коментар